Roberto Paternostro Arquitetura e Urbanismo – São Paulo – SP – 1999
Em um terreno estreito, o edifício reproduz a proporção longitudinal do lote por meio de partido arquitetônico em bloco único.
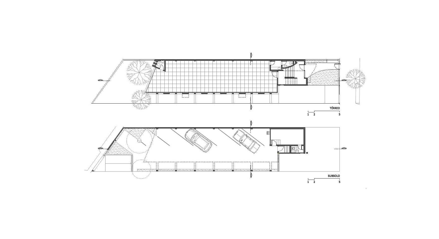
As principais diretrizes do projeto são a elevação do térreo e, de toda a edificação, a meio pé-direito da rua e a transição lateral dos pilares entre esse andar e o subsolo, medidas que minimizam a rampa de acesso de veículos e propiciam vão livre total para o estacionamento, capaz de abrigar seis veículos.
Para obter laje ampla, livre da interferência de pilares ou ambientes de serviço, o arquiteto concentrou na parte frontal do terreno as áreas auxiliares com dimensões mínimas, copa e lavabo, junto com a escada de uso coletivo, e encostou o edifício na divisa lateral direita, levando os pavimentos até os limites dos recuos restantes.
Assim, a estrutura de concreto pôde ser resolvida por meio de uma malha simples de 3 m x 5 m, com balanços nas extremidades frontal e posterior.
A volumetria do edifício espelha a setorização interna. Na parte frontal, uma caixa retangular vedada com blocos de vidro contém a escada e o lavabo, separados por um vazio que evidencia o bonito revestimento de pastilhas na cor azul.
Já o volume da caixa-d’água, prolongado até a cota da entrada por uma marcante lãmina branca sem aberturas frontais, delimita, horizontalmente, os pavimentos térreo e superior.
No escritório, a criação de um mezanino para mapoteca determinou o traçado da cobertura em abóbada, o desenho possível í transição entre a altura máxima (9 m) permitida na divisa e o pé-direito necessário.
A luminosidade natural abundante nos interiores é acentuada pela predominãncia do branco nos revestimentos. No andar superior, a abóbada da cobertura distribui com grande eficiência e qualidade toda a luz natural incidente no escritório.
O edifício possui também bom desempenho térmico, devido í existência de árvores de médio porte no terreno e no entorno, ao isolamento com lã de vidro na cobertura e í localização da escada na face norte, protegendo a edificação da insolação excessiva.
Texto resumido a partir de reportagem de Evelise Grunow
Publicada originalmente em PROJETODESIGN
Edição 260 Outubro 2000
Ficha técnica:
Estrutura: M.O.Coelho da silva
Hidráulica: Giacometti Projetos e Obras
Elétrica:Giacometti Projetos e Obras
Ar condicionado: Planenrac Eng. Térmica
Luminotécnica: acerbi luz e design
Construção: Ricardo Safady
írea Construida: 330,00
Proj/Obra: 1999/2001